
Cette maison est dans la famille de Madame depuis plusieurs générations (avant 1850). Elle est habitée par les grand-parents.
En 2016 le dernier grand-parent décède et il est déjà question une première fois de la racheter. A l’époque les conditions ne sont pas remplies.
Quelques années plus tard et un confinement passé non loin de là changent la donne. Le monde du travail évolue et le télétravail rentre dans les mœurs.
La question du rachat de cette maison se pose de nouveau.. et nous sautons le pas.
Décembre 2020 c’est fait : nous sommes les nouveaux propriétaires !
La maison fait 200m² au sol et n’est habitable qu’en partie (et les murs de 60cm d’épaisseur réduisent énormément la surface). Au final il y a 160m² habitable.
Allez, faisons un petit tour.
Les plans « avant »

Au rez de chaussée :
- Travée 1 : Une cave et un cellier non chauffés. Cette travée se trouve sur la façade Nord de la maison.
- Travée 2 : « Salon/salle à manger » traversante (Est/Ouest).
- Travée 3 : Une véranda sas d’entrée qui donne dans la cuisine. C’est l’entrée principale de la maison et derrière une chambre.
- Travée 4 : Au sud une pièce « technique » dite de « Chaufferie » avec Chaudière Gaz (anciennement fioul), compteur et tableau électrique 380V, arrivée d’eau, mais aussi un WC et la seule salle de bain de la maison.
Les revêtements de sols sont divers et varié mais globalement c’est soit de la tomettes à l’ancienne (repeintes) soit du carrelage (imitation tomette ou petit carrés rouge). Les hauteurs de sol sont elles aussi disparates.

Au premier étage, seules les travées centrales sont directement accessibles :
- Travée 2 : deux chambres (historiquement celle du haut était en enfilade de la première).
- Travée 3 : Couloir d’accès avec en bas une petite chambre non chauffée avec un escalier fermé allant sur le grenier (non aménagé). Et une dernière grande chambre en haut du plan.
Quelques photos « avant »
Et quelques photos de l’intérieur (présentée dans l’ordre de lecture des plans, par travée (de gauche à droite et de haut en bas) :
















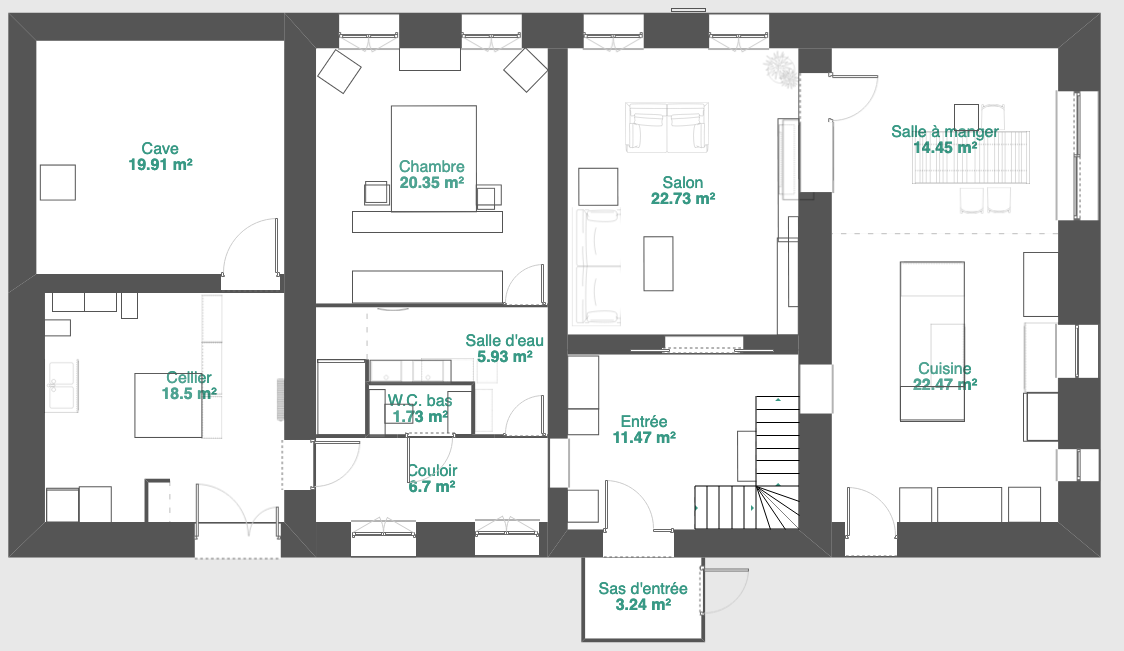
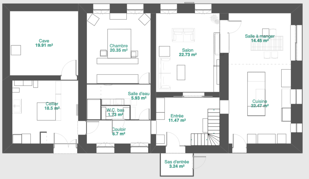
Les plans après :

- Travée 1 : La cave n’est pas modifiée. Le cellier devient la pièce technique avec l’arrivée d’eau, de gaz, d’électricité, fibre et la chaudière.
- Travée 2 : Devient la suite parentale et un WC pour le rez-de-chaussée. Une ouverture est créée pour former un couloir pour aller vers le Cellier.
- Travée 3 : La cuisine devient l’entrée et la chambre devient le salon. Une large ouverture est créée entre ces deux pièces
- Travée 4 : Au sud on retrouve la cuisine et la salle à manger. Une grande ouverture est faite entre le salon et la salle à manger pour une cheminée
